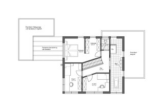
Klick auf die Bilder erzeugt eine größere Ansicht
| Grundfläche/Maße: | 10,25 x 9,50 m |
| Wohnfläche: | 151 m² |
| Nutzfläche: | 76 m² |
| Anzahl Zimmer: | 4 |
| Anzahl Bäder: | 1 |
| Haustechnik: |
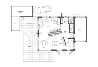
Klick auf die Bilder erzeugt eine größere Ansicht
| Grundfläche/Maße: | 10,25 x 9,50 m |
| Wohnfläche: | 151 m² |
| Nutzfläche: | 76 m² |
| Anzahl Zimmer: | 4 |
| Anzahl Bäder: | 1 |
| Haustechnik: |