Klick auf die Bilder erzeugt eine größere Ansicht
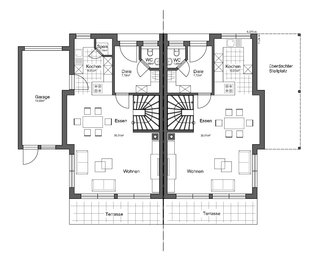
| Grundfläche/Maße: | 6,375 x 11,24 m | 
| Wohnfläche: | 109 m² | 
| Nutzfläche: | 64 m² | 
| Anzahl Zimmer: | 4 | 
| Anzahl Bäder: | 1 | 
| Haustechnik | 
Klick auf die Bilder erzeugt eine größere Ansicht
| Grundfläche/Maße: | 6,375 x 11,24 m | 
| Wohnfläche: | 109 m² | 
| Nutzfläche: | 64 m² | 
| Anzahl Zimmer: | 4 | 
| Anzahl Bäder: | 1 | 
| Haustechnik |