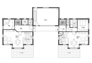
Klick auf die Bilder erzeugt eine größere Ansicht
| Grundfläche/Maße (ein Haus): | 10,00 x 8,60 m |
| Wohnfläche: | 283 m² |
| Nutzfläche: | 184 m² |
| Anzahl Zimmer: | 9 |
| Anzahl Bäder: | 3 |
| Haustechnik: |
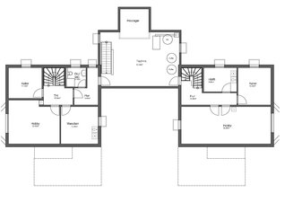
Klick auf die Bilder erzeugt eine größere Ansicht
| Grundfläche/Maße (ein Haus): | 10,00 x 8,60 m |
| Wohnfläche: | 283 m² |
| Nutzfläche: | 184 m² |
| Anzahl Zimmer: | 9 |
| Anzahl Bäder: | 3 |
| Haustechnik: |